操作系统启动概念
不管是Windows还是Linux操作系统,底层设备一般均为物理硬件,操作系统启动之前会对硬件进行检测,然后硬盘引导启动操作系统,如下为操作系统启动相关的各个概念:
BIOS
基本输入输出系统(Basic Input Output System,BIOS)是一组固化到计算机主板上的只读内存镜像(Read Only Memory image,ROM)芯片上的程序,它保存着计算机最重要的基本输入输出的程序、系统设置信息、开机后自检程序和系统自启动程序。主要功能是为计算机提供最底层的、最直接的硬件设置和控制。
MBR
全新硬盘在使用之前必须进行分区格式化,硬盘分区初始化的格式主要由两种,分别是:MBR格式和GPT格式。
如果使用MBR格式,操作系统将创建主引导记录扇区(Main Boot Record,MBR),MBR位于整块硬盘的0磁道0柱面1扇区,主要功能是操作系统对磁盘进行读写时,判断分区的合法性以及分区引导信息的定位。
主引导扇区总共为512字节,MBR只占用了其中的446个字节,另外的64个字节为硬盘分区表 (Disk Partition Table,DPT),最后两个字节"55,AA"是分区的结束标志。
在MBR硬盘中,硬盘分区信息直接存储于主引导记录(MBR)中,同时主引导记录还存储着系统的引导程序,如图所示:

MBR是计算机启动最先执行的硬盘上的程序,只有512字节大小,所以不能载入操作系统的核心,只能先载入一个可以载入计算机核心的程序,我们称之为引导程序。
因为MBR分区标准决定了MBR只支持在2TB以下的硬盘,对于后面的多余空间只能浪费。为了支持能使用大于2T硬盘空间,微软和英特尔公司在可扩展固件接口(Extensible Firmware Interface,EFI)方案中开发了全局唯一的标识符(Globally unique identifier,GUID),进而全面支持大于2T硬盘空间在企业中使用。
GPT
全局唯一的标识符(Globally unique identifier,GUID),正逐渐取代MBR成为新标准。它和统一的可扩展固件接口 (Unified Extensible Firmware Interface,UEFI)相辅相成。
UEFI用于取代老旧的BIOS,而GPT则取代老旧的MBR。之所以称为"GUID分区表",是因为驱动器上的每个分区都有一个全局唯一的标识符。
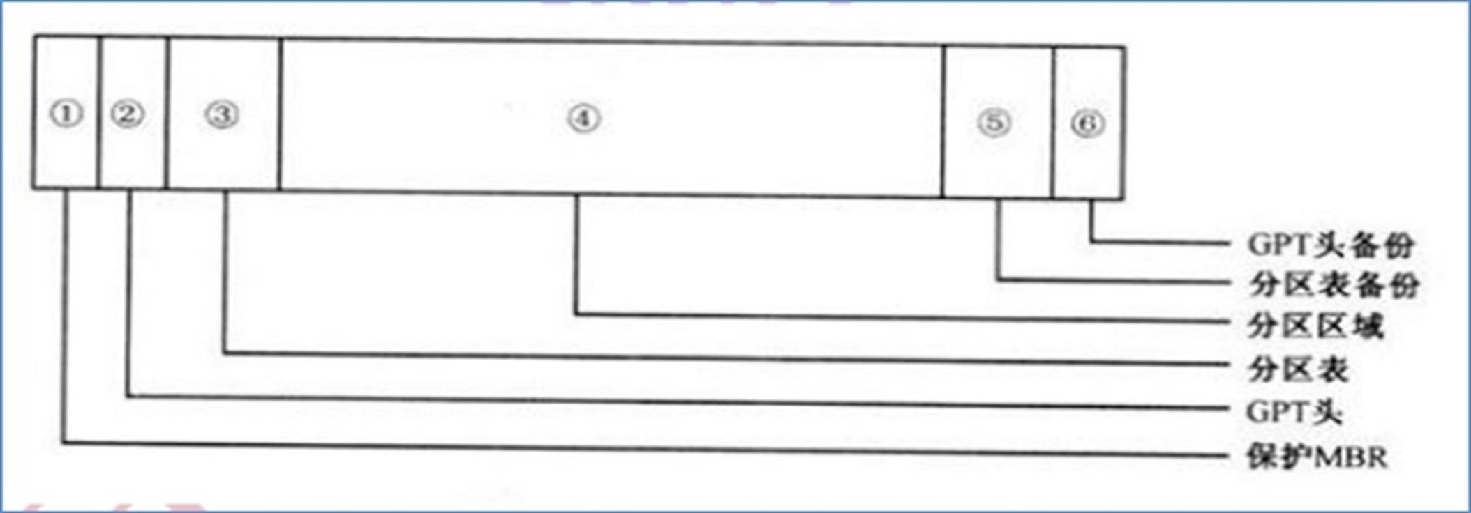
在GPT硬盘中,分区表的位置信息储存在GPT头中。出于兼容性考虑,第一个扇区同样有一个与MBR类似的标记,叫做受保护的主引导记录(Protected Main Boot Record,PMBR)。
PMBR的作用是当使用不支持GPT的分区工具时,整个硬盘将显示为一个受保护的分区,以防止分区表及硬盘数据遭到破坏,而其中存储的内容和MBR一样,之后才是GPT头。
GPT优点支持2T以上磁盘,如果使用Fdisk分区,最大只能建立2TB大小的分区,创建大于2TB的分区,需使用parted,同时必须使用64位操作系统,Mac、Linux系统都能支持GPT分区格式,Windows 7/8 64bit、Windows Server 2008 64bit支持GPT。如图所示,为GPT硬盘分区表内容:

GRUB
GNU项目的多操作系统启动程序(GRand Unified Bootloader,GRUB),可以支持多操作系统的引导,它允许用户可以在计算机内同时拥有多个操作系统,并在计算机启动时选择希望运行的操作系统。
GRUB可用于选择操作系统分区上的不同内核,也可用于向这些内核传递启动参数。它是一个多重操作系统启动管理器。用来引导不同系统,如Windows,Linux。Linux常见的引导程序包括:LILO、GRUB、GRUB2,CentOS 7 Linux默认使用GRUB2引导程序,引导系统启动。如图所示为GRUB加载引导流程:

GRUB2是基于GRUB开发成更加安全强大的多系统引导程序,最新Linux发行版都是使用GRUB2作为引导程序。同时GRUB2采用了模块化设计,使得GRUB2核心更加精炼,使用更加灵活,同时也就不需要像GRUB分为stage1,stage1.5,stage2三个阶段。
Linux操作系统启动流程
初学者对Linux操作系统启动流程的理解,能有助于后期在企业中更好的维护Linux服务器,能快速定位系统问题,进而解决问题。Linux操作系统启动流程如图所示:

1)加载BIOS
计算机电源加电质检,首先加载基本输入输出系统(Basic Input Output System,BIOS),BIOS中包含硬件CPU、内存、硬盘等相关信息,包含设备启动顺序信息、硬盘信息、内存信息、时钟信息、即插即用(Plug-and-Play,PNP)特性等。加载完BIOS信息,计算机将根据顺序进行启动。
2)读取MBR
读取完BIOS信息,计算机将会查找BIOS所指定的硬盘MBR引导扇区,将其内容复制到0x7c00地址所在的物理内存中。被复制到物理内存的内容是Boot Loader,然后进行引导。
3)GRUB引导
GRUB启动引导器是计算机启动过程中运行的第一个软件程序,当计算机读取内存中的GRUB配置信息后,会根据其配置信息来启动硬盘中不同的操作系统。
4)加载Kernel
计算机读取内存映像,并进行解压缩操作,屏幕一般会输出"Uncompressing Linux"的提示,当解压缩内核完成后,屏幕输出"OK, booting the kernel"。系统将解压后的内核放置在内存之中,并调用start_kernel()函数来启动一系列的初始化函数并初始化各种设备,完成Linux核心环境的建立。
5)设定Inittab运行等级
内核加载完毕,会启动Linux操作系统第一个守护进程init,然后通过该进程读取/etc/inittab文件,/etc/inittab文件的作用是设定Linux的运行等级,Linux常见运行级别如下:
0:关机模式;
1:单用户模式;
2:无网络支持的多用户模式;
3:字符界面多用户模式;
4:保留,未使用模式;
5:图像界面多用户模式;
6:重新引导系统,重启模式。
6)加载rc.sysinit
读取完运行级别,Linux系统执行的第一个用户层文件/etc/rc.d/rc.sysinit,该文件功能包括:设定PATH运行变量、设定网络配置、启动swap分区、设定/proc、系统函数、配置Selinux等。
7)加载内核模块
读取/etc/modules.conf文件及/etc/modules.d目录下的文件来加载系统内核模块。该模块文件,可以后期添加或者修改及删除。
8)启动运行级别程序
根据之前读取的运行级别,操作系统会运行rc0.d到rc6.d中的相应的脚本程序,来完成相应的初始化工作和启动相应的服务。其中以S开头表示系统即将启动的程序,如果以K开头,则代表停止该服务。S和K后紧跟的数字为启动顺序编号。如图所示:

9)读取rc.local文件
操作系统启动完相应服务之后,会读取执行/etc/rc.d/rc.local文件,可以将需要开机启动的任务加入到该文件末尾,系统会逐行去执行并启动相应命令,如图所示:

10)执行/bin/login程序
执行/bin/login程序,启动到系统登录界面,操作系统等待用户输入用户名和密码,即可登录到Shell终端,如图所示,输入用户名、密码即可登录Linux操作系统,至此Linux操作系统完整流程启动完毕。

